Od načrta do izvedbe JUBHome WALL

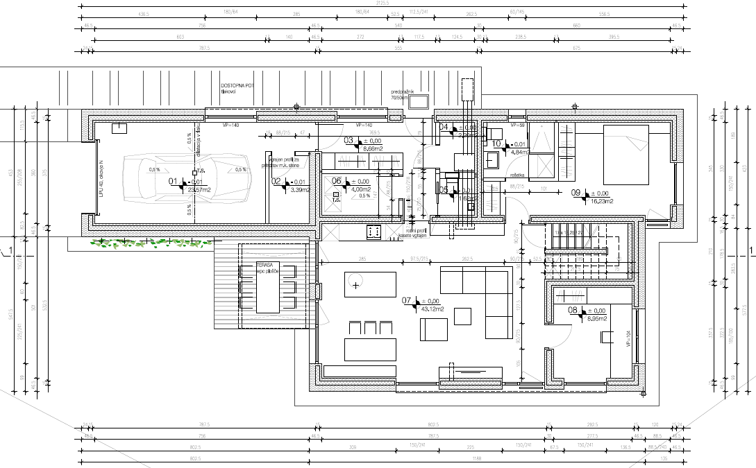
  1. Načrt arhitekture: Na podlagi prejetih načrtov se s stranko in projektantom dogovorimo za minimalne prilagoditve mer konstrukcije za doseganje modularnih rastrov in detajlov, vezanih na JUBHome sistem.

Načrt arhitekture

  1. 3D Model: Po potrditvi mer v tehnični pripravi izdelamo grafiko celotne stavbe v 3D modelu, z vsemi sestavnimi tipskimi in netipskimi (rezanimi in lepljenimi) elementi.

Zlaganje

  1. Sestavni načrt: Za uporabo na gradbišču iz 3D modela formiramo sestavni načrt s pogledom na posamezne stene z označenimi pozicijami elementov in njihovo specifikacijo.

 Sestavni načrt

  1. Izvedba: Po izdelavi netipskih elementov, vse elemente zberemo, embaliramo in dostavimo na gradbišče, kjer se gradnja lahko prične.

Zgrajena hiša